Объединенная зона охраны появится в областном центре.

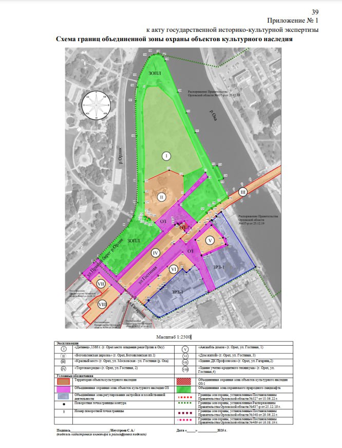
Получен положительный акт историко-культурной экспертизы проекта по установлению объединенной зоны охраны объектов культурного наследия. Документ опубликован на сайте областного правительства. В объединенную зону войдут следующие памятники: здание ДК Профсоюзов (ул. Гагарина, 2), Ансамбль домов (ул. Гостиная, 1), Торговые ряды (ул. Гостиная, 2), дом жилой (ул. Гостиная, 3), здание учетно-кредитного техникума (ул. Гостиная, 4), Богоявленская церковь (Богоявленская площадь, 1). Проект превратится в официальный документ после того, как его утвердят областные власти.
Проектом предполагается создание объединенных охранных зон (ОЗ и ОЗ-1), объединенной зоны регулирования застройки и хозяйственной деятельности (ЗРЗ-1) и объединенной зоны особо охраняемого природного ландшафта (ЗОПЛ). Соответственно, будут введены определенные ограничения использования земельных участков и требования к градостроительным регламентам в границах объединенной зоны охраны объектов культурного наследия.
Например, в границах зоны ОЗ планируется запретить: строительство, за исключением линейных объектов; использование строительных технологий, оказывающих негативное воздействие на объекты культурного наследия и историческую застройку; размещение взрыво- и пожароопасных объектов, угрожающих сохранности памятников; размещение рекламы, вывесок, некапитальных строений, сооружений и объектов, включая автостоянки, киоски и навесы, которые нарушают характеристики историко-градостроительной среды.
В границах зоны ОЗ-1 также будет запрещено размещение летних веранд пунктов общественного питания; временных элементов информационно-декоративного оформления событийного характера (мобильные информационные конструкции), включая праздничное оформление; размещение отходов производства и потребления, устройство складов и захоронений ядохимикатов.
В границах объединенной зоны регулирования застройки и хозяйственной деятельности (ЗРЗ 1) планируется сохранение исторических линий застройки кварталов – линии застройки по улице Гагарина. Максимальный процент застройки в установленных границах – 50 процентов; максимальное количество надземных этажей – 5 этажей; максимальная высота объектов капитального строительства – не более 17 метров; цветовое решение фасадов – с применением неярких (пастельных) оттенков.
В границах объединенной зоны охраняемого природного ландшафта (ЗОПЛ) будет запрещено: ведение хозяйственной деятельности, нарушающей характер и облик исторического и природного окружения объектов культурного наследия, вызывающей загрязнение почв, воздушного и водного бассейнов, нарушение сложившегося характера гидрологических условий; уничтожение ценных зеленых насаждений; размещение базовых станций сотовой связи, башенных и антенно-мачтовых конструкций, включая телевизионные и радиоантенны, которые препятствуют визуальному восприятию охраняемого природного ландшафта.

ИА “Орелград”




