Управление градостроительства региона утвердило документацию.

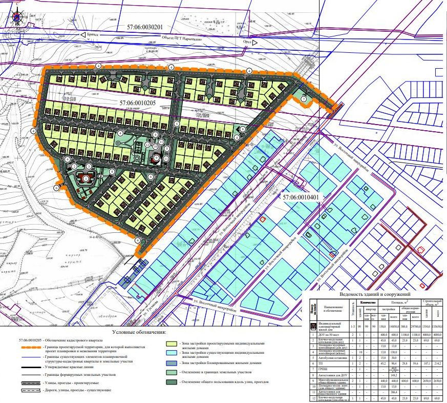
Приказ об утверждении документации (проектов межевания и планировки) в границах кадастрового квартала 57:06:0010205 (пгт Нарышкино) опубликован в конце декабря. Бумаги необходимы для формирования земельных участков и дальнейшего предоставления льготной категории граждан.
Часть кадастрового квартала 57:06:0010205, в границах которого предусматривается размещение объектов малоэтажного жилищного строительства, расположена на северо-востоке поселка Нарышкино и ограничена с севера трассой Р-120 “Орел – Брянск”, с юго-востока смежными кварталами, с юго-запада – земли, государственная собственность на которые не разграничена.
Композиционно-пространственное и планировочное решение, тип и этажность жилых домов, расположение общественных и вспомогательных зданий выполнено с учетом действующего генплана поселка, транспортных и пешеходных связей, ландшафта местности. Группы индивидуальных жилых домов образуют компактные кварталы в основном прямоугольной формы. В центральной и юго-западной части в проектируемых кварталах предусмотрено строительство детского сада и торгового здания. Зона рекреации разделена на территорию площадок общего пользования – детские, отдыха и спорта.
Основные показатели отмечены в проектах. Площадь планируемой территории около 23,7 га. Количество домов – 99 (до трех этажей). Площадь земельных участков для застройки индивидуальными домами – 10 га. Общая площадь жилья прогнозируется на уровне 29,7 тыс. кв. м. Ожидаемое количество жителей – 545 чел. Плотность населения – 23 чел/га. Процент застройки – 14,4%. Предусмотрен детсад на 50 мест (0,71 га). Торговая площадь многофункционального общественного здания – около 153 кв. м (0,38 га). Для размещения скверов отвели половину гектара. Площадь улиц и проездов около 8,91 га.
ИА “Орелград”




